Tính năng TOTO CS986GE4 – Bồn cầu thông minh nắp rửa cơ TCW1211A
- Thiết kế trang nhã, sang trọng, hiện đại
- Nắp rửa cơ TCW1211A hiện đại
- CEFIONTECT: Bồn cầu được tráng 1 lớp men siêu ưa nước chống dính, chống bám bẩn
- RIMLESS: bồn cầu được thiết kế vành kín không có chỗ cho vi khuẩn, chất thải bám vào giúp dễ dàng vệ sinh hơn
- TORNADO: xả xoáy 360 tới mọi vị trí trong lòng bồn cầu giúp làm sạch hiệu quả hơn, giảm tiếng ồn, tiết kiệm nước sử dụng cho mỗi lần xả
- WATER-SAVING: Công nghệ xả siêu sạch và tiết kiệm nước với chỉ 4,8 lít hoặc nhỏ hơn cho 1 lần xả đại
Tính năng nổi bật Nắp rửa cơ TOTO TCW1211A (E4)
- 02 vòi nước lạnh – rửa sau đại tiện và rửa trước tiểu nữ
- Nước phun ra được hoà trộn với bọt khí tạo cảm giác êm dịu nhưng cũng đủ mạnh để làm sạch mọi vết bẩn.
- Nắp bồn cầu rơi êm, hạn chế tiếng động, tăng độ bền cho sản phẩm
- Tự động vệ sinh vòi rửa trước và sau khi sử dụng bằng nước lạnh
- Dễ dàng tháo lắp để vệ sinh bồn cầu.
- ECO-WASHER không tiêu thụ điện năng trong khi sử dụng
- Thiết kế mỏng nhẹ, hiện đại phù hợp với mọi không gian phòng tắm
- Nắp được sản xuất bằng chất liệu nhựa cao cấp, bền bỉ với thời gian
Thông số kỹ thuật TOTO CS986GE4 – Bồn cầu thông minh nắp rửa cơ TCW1211A
- Thương hiệu: Thiết bị vệ sinh TOTO
- Mã sản phẩm: CS986GE4
- Kiểu bồn cầu: Bồn cầu thông minh nắp rửa cơ
- Mã nắp: TCW1211A
- Loại nắp: nắp rửa cơ nước lạnh không dùng điện
- Kiểu xả: 2 nhấn – 4,5 lít đại và 3 lít tiểu
- Công nghệ xả: xả xoáy Tornado
- Tâm xả: 305mm
- Kích thước (sâu x rộng x cao) : 700x456x765mm
- Kích thước nắp (sâu x rộng x cao): 509x380x105mm
- Bao gồm: thân bệt ( đi kèm bộ xả ) , nắp két nước, bộ nắp rửa cơ TCW1211A, bích nối sàn ( con thỏ ), van khoá nước, cút nối, dây cấp nước, ống nối sàn, bộ cố định
- Xuất xứ: Việt Nam
- Bảo hành: 2 năm
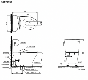
Bản vẽ kích thước TOTO CS986GE4 – Bồn cầu thông minh nắp rửa cơ TCW1211A


Hình ảnh, video thực tế TOTO CS986GE4 – Bồn cầu thông minh nắp rửa cơ TCW1211A
Đang cập nhật…
Danh mục liên quan: thiết bị vệ sinh , bồn cầu , bồn cầu thông minh , bồn cầu thông minh TOTO

























