Tính năng TOTO TBG10305A – Vòi sen xả bồn tắm gắn bồn 3 lỗ GB
- Thiết kế hiện đại, sang trọng
- Sản phẩm được sản xuất bằng đồng nguyên chất không chứa chì mạ crom/niken an toàn cho sức khoẻ.
- COMFORT GLIDE: Lõi sen (óc sen) cấu tạo bằng sứ Ceramic cao cấp hạn chế bám bẩn, chống ăn mòn giúp cần gạt sen bền bỉ đóng mở dễ dàng trong suốt quá trình sử dụng
- Lớp mạ Crom/Niken dày gấp ba lần chống ăn mòn, dễ dàng vệ sinh
- Đầu xả nước trộn khí êm dịu và hạn chế bắn
- Tay sen TBW02005A cỡ lớn tăng áp lực nước 1 chế độ phun. Công nghệ: COMFORT WAVE
Thông số kỹ thuật TOTO TBG10305A – Vòi sen xả bồn tắm gắn bồn 3 lỗ GB
- Mã sản phẩm: TBG10305AA (Mã cũ : TBG10305A)
- Bộ sưu tập: GB
- Thương hiệu: Thiết bị vệ sinh TOTO
- Kiểu sen: sen bồn tắm gắn bồn 3 lỗ 1 tay gạt
- Chất liệu: đồng mạ chrome
- Bảo hành: 2 năm
- Tay sen: TBW02005A
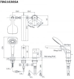
Bản vẽ kích thước TOTO TBG10305A – Vòi sen xả bồn tắm gắn bồn 3 lỗ GB

Hình ảnh, video thực tế TOTO TBG10305A – Vòi sen xả bồn tắm gắn bồn 3 lỗ GB
Đang cập nhật…
Danh mục liên quan: thiết bị vệ sinh , vòi sen , Vòi sen bồn tắm ,vòi sen TOTO , Vòi sen bồn tắm TOTO

























